BYGGETILLADELSE
Byggetilladelse
Som en del af ansøgningen til byggetilladelsen skal du have lavet en række udregninger og mål på ditbyggeprojekt.

Læs mere om byggetilladelse
Vi har pointeret de forskellige byggetilladelser vi tilbyder, og ser frem til at hjælpe dig med yderligere spørgsmål.
Hvad er en byggetilladelse?
En byggetilladelse er en tilladelse, der gives af en myndighed til at bygge eller foretage ændringer på en ejendom. Det er normalt en krævet tilladelse fra kommunen eller byggestyrelsen, før nogen byggeprojekt kan startes.
En byggetilladelse er en vigtig del af bygningsprocessen, da det sikrer, at byggeriet overholder de lokale bygge- og sikkerhedsstandarder samt andre krav, såsom krav til brandsikkerhed og handicappede adgang. Byggetilladelsen indeholder normalt oplysninger om, hvilke typer byggearbejder der er tilladt, de specifikke dimensioner og materialer, der skal bruges, og de specifikke krav, der skal opfyldes under byggeprocessen.
Det er vigtigt at bemærke, at byggetilladelser kan variere fra område til område, og det er derfor vigtigt at kontakte de relevante myndigheder i dit område for at få mere præcis information om, hvad der kræves for at opnå en byggetilladelse.
Tegningsmateriale
Læs om de mest almindelige tegningstyper og find ud af, hvad de skal indeholde. Det er vigtigt at tegningsmaterialet er udført korrekt da det hjælper sagsbehandleren med at vurdere din ansøgning da de vil få en bedre forståelse af hvad du gerne vil udføre.
Det er forskelligt hvilke tegninger myndighederne kræver
Hvilke type tegninger der skal indsendes til myndighederne kommer an på hvilken ansøgning man sender til dem.

Plantegning
En Plantegning skal kunne vise rumfordelingen i hele byggeriet, det vil sige at der skal udarbejdes tegninger for hver etage så man kan se hvordan byggeriet udformer sig.
Plantegningen giver en indsigt i hvordan byggeriets indretning er fortaget. Derfor skal tegningen indeholde rumbetegnelser på alle rum, Det vil sige at det skal tydeliggøres hvor WC, køkken og værelse er, derudover skal man også oplyse hvor mange kvadratmeter hvert rum er. Plantegningen skal også vise hvilke retning dørene åbner, vægge, vinduer og hvordan badeværelset og køkkenet er indrettet. På plantegningen skal det også placeres en nord pil som viser hvilken retning bygningen har

Facader
En facadetegning viser hvordan bygningens udsende er udefra, der skal udarbejdes tegninger fra alle sider, Nord, Syg, Øst og Vest. Det hjælper bl.a. med hvor man vil kunne se solopgang og solnedgang.
En facadetegning er relevant når man søger byggetilladelse da man ville kunne se på tegningen hvis man har en kvist, eller en altan. Derudover skal facadetegning også have forskellige kvoter så man kan se bygnings højde.

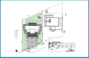
Situationsplan
En situationsplan skal vise hele matriklen. Her angives det hvor bygningen ligger på grunden samt bygningens afstand til andre bygninger og om man overholder lovkravet om 2,5 m til skel. Det er vigtigt at man kan se andre ’bygninger’ på grunden såsom skure, drivhuse, carporte og eventuelt brandredningsarealer.

Snittegning
Ofte kræver myndighederne også en snittegning af bygningen, formålet med dette er at vise hvordan bygningen er opbygget, for at se om man overholder BR18 lovene. Fx isolering, sokkel og klimaskærmen. Derudover kan man ved hjælp af snittegning se forskellige niveauer i bygningen hvor man skal angive kvoterne hvis man har flere etagers byggeri.
